





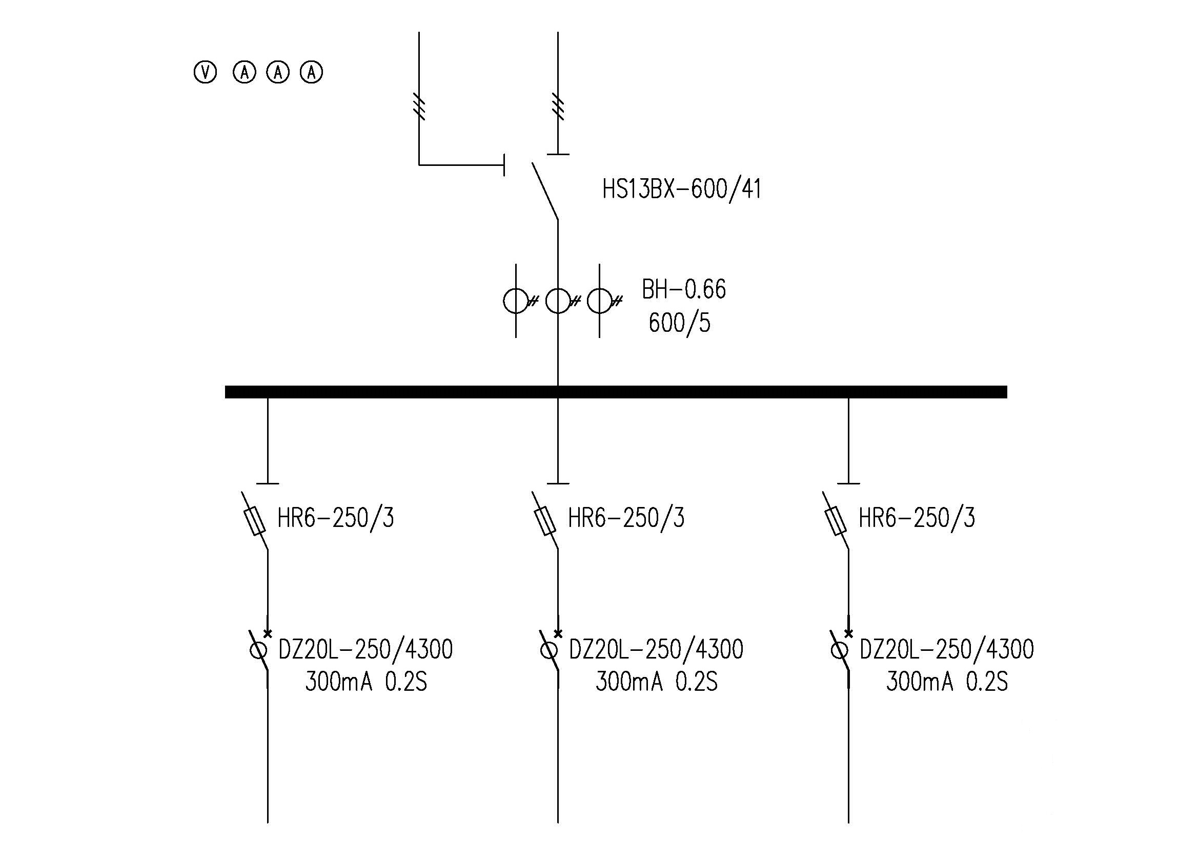
GGD柜 正泰 总输入600A 3路 柜体尺寸800*2200*600
GGD柜 柜体尺寸800*2200*600 正泰 600A总输入由刀开关控制 3回路采用熔断式负荷隔离开关+塑壳断路器控制 带指示灯、电压电流表等
收藏
联系客服24小时客服

扫码联系客服,立即咨询
如需了解更详情资料
联系客服:400-6611-323
联系客服:400-6611-323
方案BOM清单
方案总价
6795.29
方案描述
暂无数据
CAD图纸
927926.dwg
文件信息
927926.pdf
927926.zip
用户评价
发表评价
专业性
价格
服务
评价商品
0 / 500
晒图片
点击上传图片
暂无评价
